Super Kapitalanlage mit langjährig gut vermieteter 3 Zimmer Wohnung in Tannheim mit 2 Balkonen

immo
Objektart Wohnung / Kauf
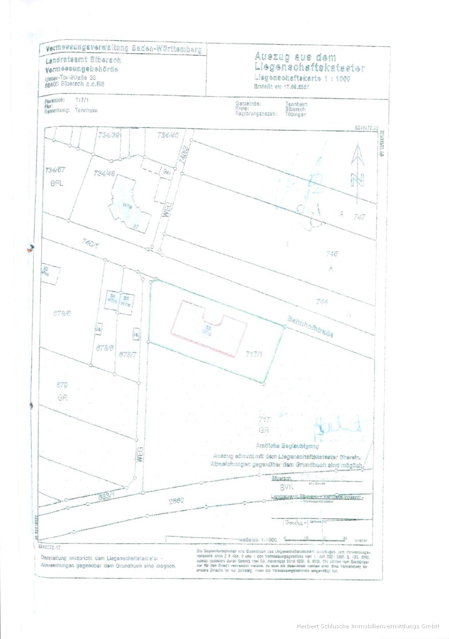
Standort 88459 Tannheim
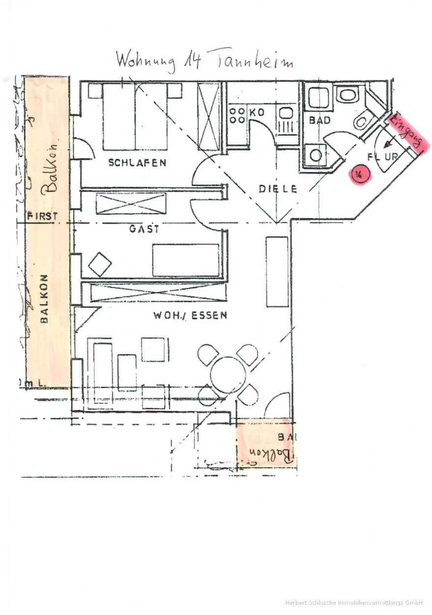
Wohnfläche 68 m²
Gesamtfläche 68 m²
Baujahr 1996
Lagebeschreibung Die Wohnanlage liegt nur wenige km von Memmingen entfernt Tannheim hat sogar einen eigenen Bahnhof/Zuganbindung, innert weniger Minuten ist man mit dem Zug in Memmingen Die bezaubernde Wohnung liegt in idyllischer Ortsrandlage von Tannheim. Der beliebte Ort Tannheim liegt nur wenige Kilometer von der Stadt Memmingen entfernt.
Anzahl Zimmer 3
Kaufpreis 201.130 €
Objektbeschreibung

Zur Kapitalanlage - Eine preisgünstige gut vermietete 3 Zimmer Dachgeschoßwohnung mit großem Westbalkon. Die 3 Zimmerwohnung mit Küche, Bad , großem Balkon , Kellerraum und 1 PKW Stellplatz hat eine Wohnfläche von 68 m ². Zur 3 Zimmerdachgeschoßwohnung mit großem Westbalkon gehören neben Wohnzimmer mit Essplatz 2 Schlafzimmer, einen Flur, ein Küchenraum ein Bad.. Wegen den optimalen Himmelsausrichtungen der Balkone können Sie sich auf den 2 Balkonen von der Sonne bis zum Abend hin verwoehnen lassen. Zur Wohnung gehört auch ein Kellerraum und ein PKW-Außenstellplatz. Kommen - Sehen und Staunen, die Wohnanlage samt der angebotenen Wohnung wird Ihnen gefallen.

Angaben lt. ENEV 2014: Verbrauchsausweis, Kennwert: 58,10kWh/(m²*a), wesentlicher Energieträger ist Öl, Klasse B

Haben Sie Interesse?

Rufen Sie mich an: +49 8375 929 1470

Direkt per E-Mail anfragen
Sonstiges
Interessante für Kapitalanleger. Die Wohnungen in der Wohnanlage haben alle einen guten Energiewert, einen niederen kostensparenden Energieverbrauch.